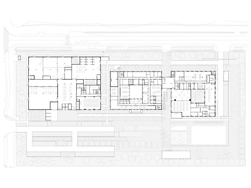
With a mix of social and market homes a place for urban parkside. Three key materials, cream and green, have been employed to create a carefully considered facade with its own strong identity.








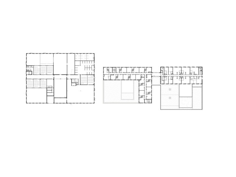
The central building is preserved and restructured to accommodate the reception and administration center, composed of offices and coworking spaces.
It joins an architecturally eclectic collection of residential buildings.
A central patio is created, which contributes to the bringing of light into the heart of the building. Some of the rooms of the accommodation center are positioned on the two upper floors..
The roof is treated in the form of sheds, a reference to the image of the factory of the industrial era. The glass roofs provide abundant, zenithal light, allowing optimal and comfortable working conditions.